5.5 Zimmer Atriumhaus mit Weitsicht in Füllinsdorf

Ihr Traumhaus könnte bald in Füllinsdorf stehen. Wir planen und realisieren ein 5.5 Zimmer Doppeleinfamilienhaus mit viel Weitblick am Sonnenhügel von Füllinsdorf. Die linke DEH-Hälfte hat bereits ihren Besitzer gefunden, die rechte etwas tiefer liegende Seite wartet auf Sie. Der Neubau ist im 2022 bezugsbereit.

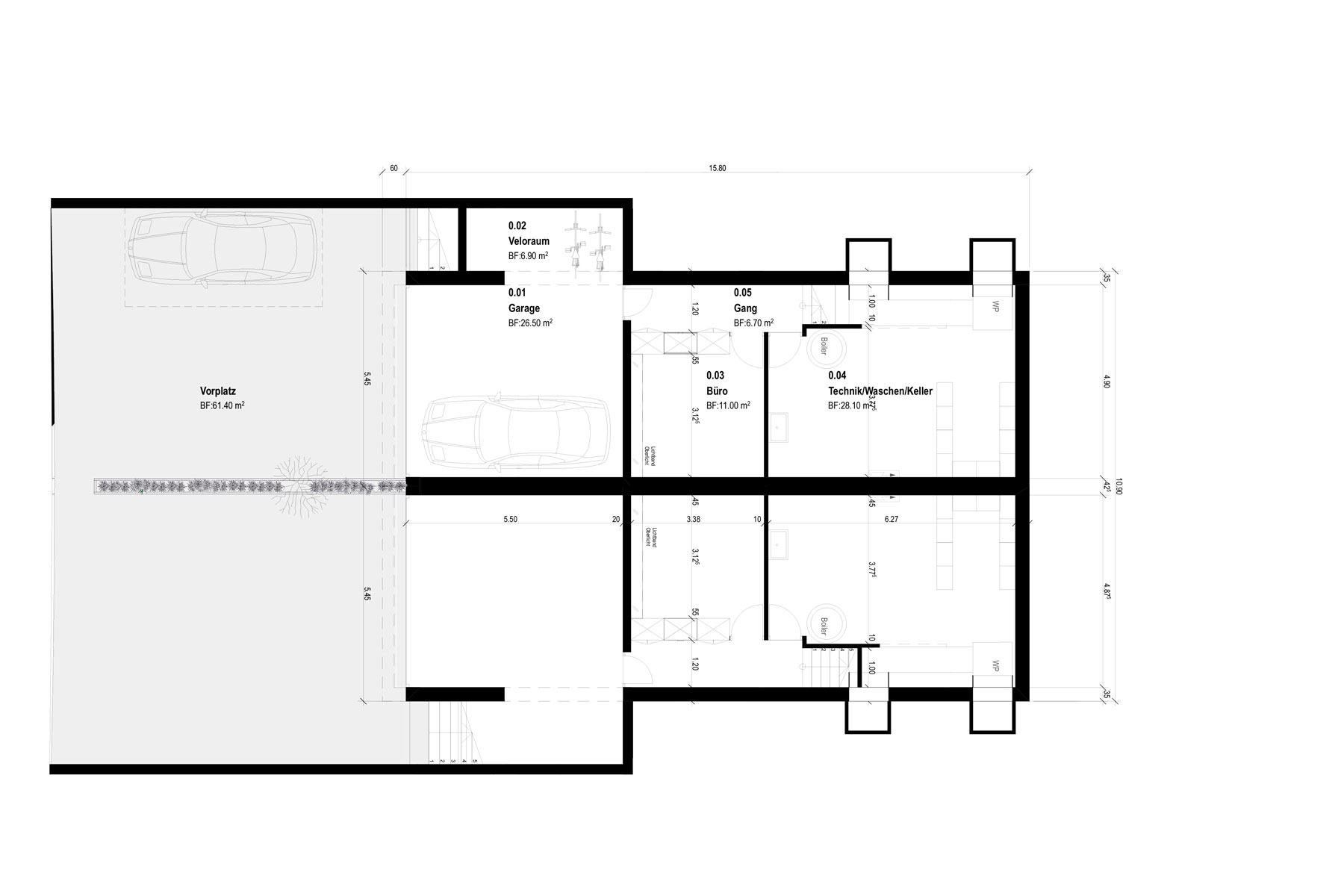
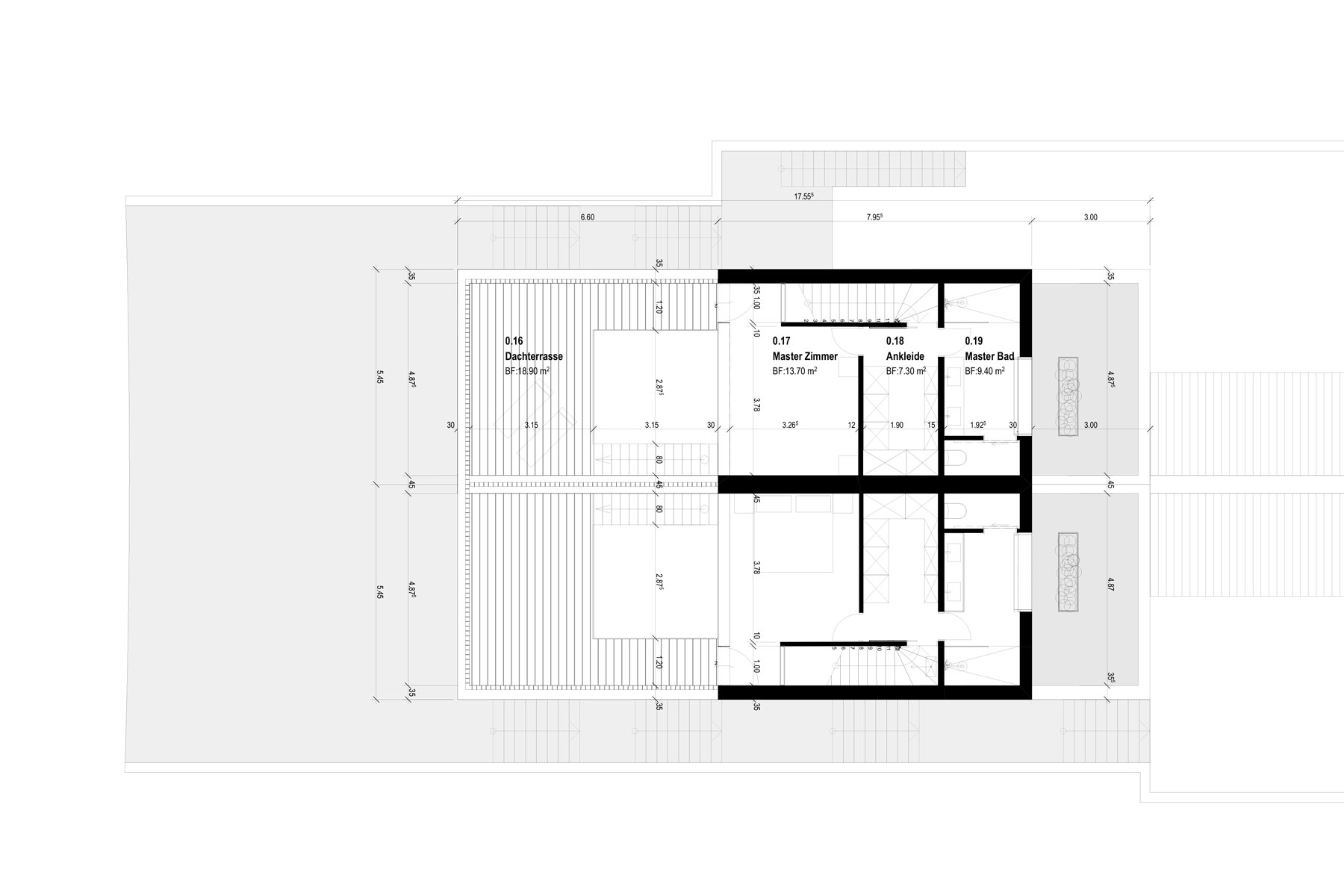
Dieses 5.5 Zimmer Doppeleinfamilienhaus besticht durch seine einzigartige Architektur.

Eine ausführliche Beschreibung finden Sie in in unserem Verkaufsexposé.



Spricht Sie unser Objekt an und möchten Sie mehr darüber erfahren, dann nehmen Sie Kontakt mit uns auf. Wir freuen uns auf Sie!

VERKAUFSPREIS: CHF 1'695'000

INTERESSE? KONTAKTIEREN SIE UNS:

Marlen Bachmann

061 311 44 77

info@wannerpartner.ch