Einladung zum virtuellen Rundgang durch das ATRIUMHAUS MIT AUSSICHT

Gerne laden wir Sie zur Vorstellung von unserem Vorprojekt ein.

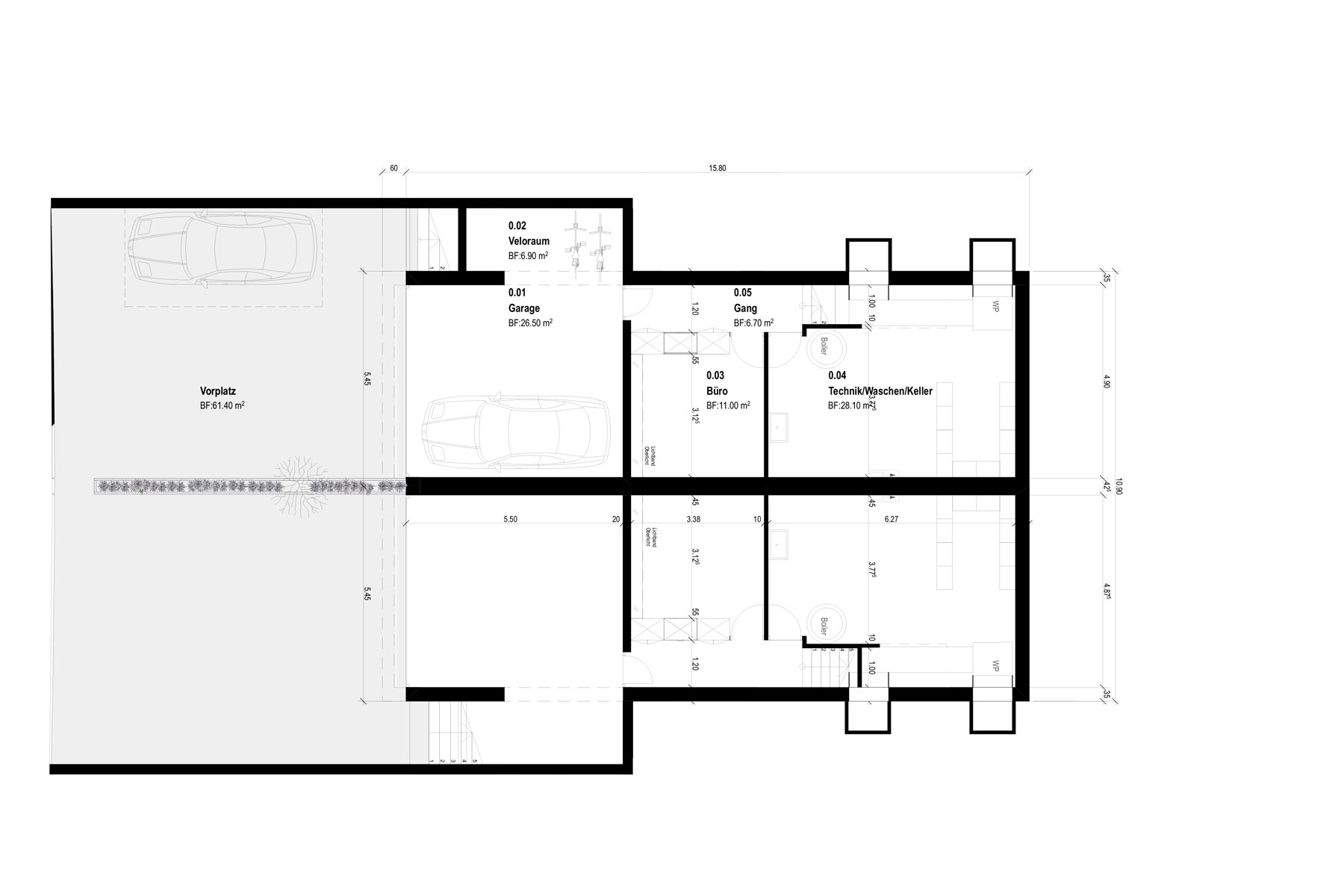
Entdecken Sie das in Füllinsdorf geplante ATRIUMHAUS. Wir führen Sie virtuell durch das Gebäude und gewähren einen Einblick in das Vorprojekt des ATRIUM Doppeleinfamilienhauses!

Die Präsentation findet am Donnerstag, 27.August 2020 um 18:00 Uhr in unserem Büro an der Frohburgerstrasse 32 in Muttenz statt.

Wir freuen uns auf Ihre Anmeldung per E-Mail an info@wannerpartner.ch oder telefonisch unter 061 311 44 77 und sind bei Fragen gerne persönlich für Sie da.